中古一戸建住宅
「利回り」は、当該不動産の1年間の予定賃料収入の不動産取得対価に対する割合であり、公租公課その他当該物件を維持するために必要な費用の控除前のものです。
また、予定賃料収入が確実に得られる事を保証するものではありません。

ぜひ一度見ていただきたい、「【オーナーチェンジ物件】右馬寮町戸建」です。畳ならではのゆっくりとくつろげる和室のある物件です。快適な室内環境を持つ、中古の一戸建て物件となっています。幅広い方にお勧めしたい高ニーズな3LDKの物件です。住まい選びのお手伝いを当社にさせていただけませんか。お客様が安心して暮らしていける不動産の紹介をしています。ぜひ当社の利用をご検討ください。

※地図上の物件位置は近隣に物件が所在することを表すものであり、実際の物件所在地とは異なる場合がございます。
075-406-0007
営業時間:9:00~18:00 / 定休日:日曜祝日
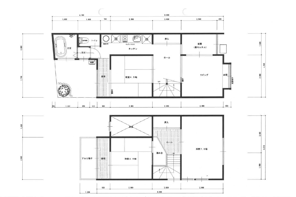
| 所在地 | 京都府京都市中京区西ノ京右馬寮町 | ||
|---|---|---|---|
| 交通 |
山陰本線 「二条」駅
徒歩12分 京都地下鉄東西線 「二条」駅 徒歩12分 山陰本線 「円町」駅 徒歩12分 |
||
| 価格 | 5,380万円 | ||
| 間取り |
3LDK
和室 4.5帖 / 和室 4.5帖 / 洋室 7.5帖 / LDK 6.0帖 / |
||
| 築年月(築年数) | 1950年 1月(築76年) | 主要採光面 | 東 |
| 建物構造 | 木造 | 階数 | 2階建 |
| 私道負担面積 | セットバック | 1.63㎡ | |
| 接道状況 | |||
| 建ぺい率/容積率 | / | 土地権利 | 所有権 |
| 地目 | 地勢 | ||
| 土地の権利形態 | |||
| 都市計画 | 市街化区域 | 用途地域 | 近隣商業地域 |
| その他法令上の制限 | |||
| 国土法届出 | 不要 | 取引態様 | 仲介 |
| 現況 | 賃貸中 | 引渡し | 相談 |
| リフォーム | |||
| 駐車場 | |||
| 設備条件 | |||
| その他条件 | |||
| 備考 | 物件の購入をご予定なら、5,380万円の物件はいかがでしょうか。建物面積85.19㎡でご家族と過ごすのにも問題のない広さです。ご家族にも十分な広さの3LDK物件です。押入れ付きの和室があると、収納スペースに困りません。不動産情報はもちろん、地域情報も詳しくお伝え致します。京都市中京区で生活するにあたって気になる点があれば、ぜひご質問くださいませ。 | ||
| 周辺の学校 | |||
| 物件番号 | 101061267 | ||
| 情報公開日 | 2026年2月2日 | 次回更新予定日 | 2026年2月16日 |
| 取引条件の有効期限 | 2026年2月16日 | ||
| 取扱い会社 |
創業元治元年 小林工務店 〒602-8203 京都府京都市上京区鏡石町一条通大宮西入36 京都府知事(3)第13549号 公益社団法人 京都府宅地建物取引業協会 |
||
075-406-0007
営業時間:9:00~18:00 / 定休日:日曜祝日
| 所在地 | 物件の住所を表示。(詳細住所は表示していない場合もある) | ||
|---|---|---|---|
| 交通 | 物件(部屋)の沿線駅・バス停を表示。(複数駅・バス停の利用が可能な場合は最大3件まで) | ||
| 間取り/詳細 | 数字は居室数を表示。LDKはそれぞれ「リビング」「ダイニング」「キッチン」、S(納戸)とは「納戸」「サービスルーム」「マルチルーム」「フリールーム」など建築基準法第28条に適合していないため、居室と認められない納戸その他の部分を表す。 | ||
| 価格 | 販売されている住戸の価格を表示。仲介手数料は含まない。 | ||
| 管理費 | 共同住宅の設備その他共用部分の維持および管理をするために必要な費用を表示。 | ||
| 修繕積立金 | 共用部分の修繕のために積立てる金額を表示。 | ||

【外観】外観も気になるポイント